In einer gemeinsamen Sitzung von Schulauschuss (CDU Sprecherin: Hanne Kirlies )
und Bau-Vergabe- und Denkmalschutzauschuss ( Vorsitzender M. Lenz)
wird am Dienstag dem 20.01.2026
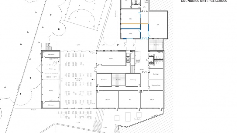
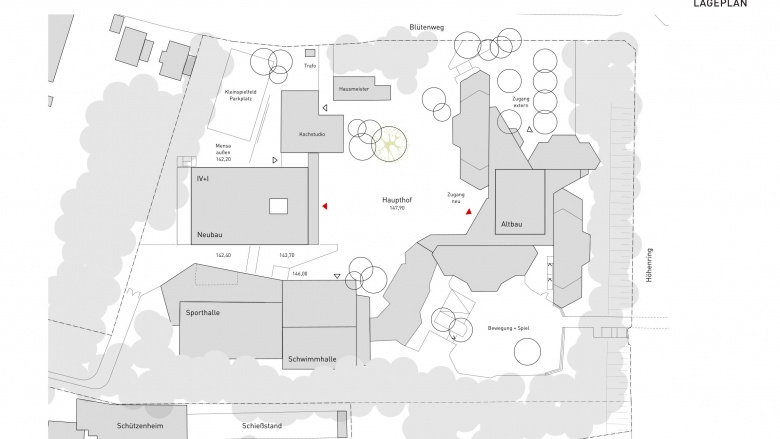
die Machbarkeitsstudie -modularer Zubau Gesamtschule Swisttal
Konzeptstudie und Abschlussberich vorgestellt und folgender Beschluss gefasst werden:
Für den Schulausschuss:
Der Schulausschuss nimmt die durch v-architekten vorgestellte Entwurfskonzeption
einschließlich eines schematischen Konzeptes für die Freianlagen, Verkehrsflächen,
notwendiger Pausenflächen und entsprechender Stellplatznachweise sowie der
Flächenberechnung bzw. Dokumentation der Objektkennzahlen und der daraus
abzuleitenden Kostenkalkulation mit einem entsprechenden Erläuterungsbericht zustimmend
zur Kenntnis. Diese Ergebnisse zusammengeführt bilden den Abschlussbericht zur
Machbarkeitsstudie — modularer Zubau Gesamtschule Swisttal - die als weitere Grundlage
für die Deckung des dringend benötigten zusätzlichen Raumbedarfs für die neue Oberstufe
zum Betrieb der Gesamtschule einschließlich Interim dient.
Der Schulausschuss empfiehlt dem Bau-, Vergabe-, und Denkmalschutzausschuss auf
Grundlage der Machbarkeitsstudie, bestehend aus der Konzeptstudie einschließlich
Abschlussbericht, die bau- und planungsrechtlichen Verfahrensschritte zur Errichtung des
modularen Anbaus einschließlich Interim einzuleiten.
Darüber hinaus empfiehlt der Schulausschuss dem Rat, die durch v-architekten erarbeitete
Machbarkeitsstudie zur Deckung des dringend benötigten zusätzlichen Raumbedarfs für die
neue Oberstufe einschließlich Interim umzusetzen
Für den Bau-, Vergabe- und Denkmalausschuss:
Der Bau-, Vergabe- und Denkmalausschuss nimmt die Empfehlung des Schulausschusses
zur Kenntnis und beschließt, die durch v-architekten erarbeitete Machbarkeitsstudie,
bestehend aus der Konzeptstudie einschließlich Abschlussbericht, die bau- und
planungsrechtlichen Verfahrensschritte zur Errichtung des modularen Anbaus einschließlich
Interim einzuleiten und entsprechend umzusetzen.
Über die Einleitung und Durchführung der jeweiligen Verfahrens- und Planungsschritte zur
Planung und Umsetzung des modularen Umbaus einschließlich Interim ist der Bau-,
Vergabe- und Denkmalschutzausschuss regelmäßig zu informieren.
Darüber hinaus empfiehlt der Bau-, Vergabe- und Denkmalschutzausschuss dem Rat, die
durch v-architekten erarbeitete Machbarkeitsstudie, bestehend aus der Konzeptstudie
einschließlich Abschlussbericht als bau- und planungsrechtliche Leitlinie zur Deckung des
dringend benötigten zusätzlichen Raumbedarfs für die neue Oberstufe zum Betrieb der
Gesamtschule einschließlich „Interim" zu beschließen.
Für den Rat der Gemeinde Swisttal:
Auf Empfehlung des Schulausschusses und des Bau-, Vergabe- und
Denkmalschutzausschusses fasst der Rat der Gemeinde Swisttal folgenden Beschluss:
„Der Rat der Gemeinde Swisttal nimmt die Empfehlungen des Schulausschusses und des
Bau-, Vergabe- und Denkmalschutzausschusses aus ihrer gemeinsamen Sitzung vom
20.01.2026 zur Kenntnis und beschließt, die durch v-architekten erarbeitete
Machbarkeitsstudie, bestehend aus der Konzeptstudie einschließlich Abschlussbericht als
bau- und planungsrechtliche Leitlinie zur Deckung des dringend benötigten zusätzlichen
Raumbedarfs für die neue Oberstufe zum Betrieb der Gesamtschule einschließlich „Interim"
umzusetzen."



Empfehlen Sie uns!